初期公開日:2025年12月13日更新日:2025年12月13日

ここから本文です。

診断結果ー機械CADコースをお勧めします

あなたに向いている訓練コースをご紹介します

短い期間で製品の製図技術を学びたいあなた!

機械CADコースをご検討ください

製品の設計製図に関する基本技術を短い期間で学びたいあなたには、「機械CADコース」が最適です。

製品の図面を描くCADオペレータに必要な製図の知識、2次元、3次元CADの操作をマスターします。関連する資格の取得を目指し、幅広い基礎力と発想を形にしていくためのクリエイティブな技術・技能を身につけます。また、就職の幅を広げるため、建築製図に関する基本的な知識とCAD技術も習得します。

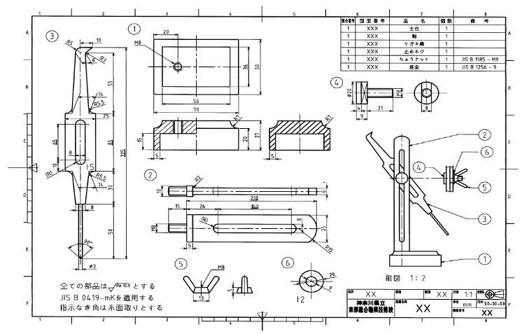
CAD室風景部品図と組立図
部品作成と組立演習建築3次元CAD体験

ぜひ、オープンキャンパスや体験入校に参加して、ご自身に合うか確かめてください。

機械CADコースの紹介を見る

オープンキャンパスの案内を見る

「ネットdeオープンキャンパス」を見る

体験入校の案内を見る

 

このページに関するお問い合わせ先

このページの所管所属は 東部総合職業技術校です。